Espace Location / Gestion
fr

Votre recherche

Sous-compromis
Angers (49100)

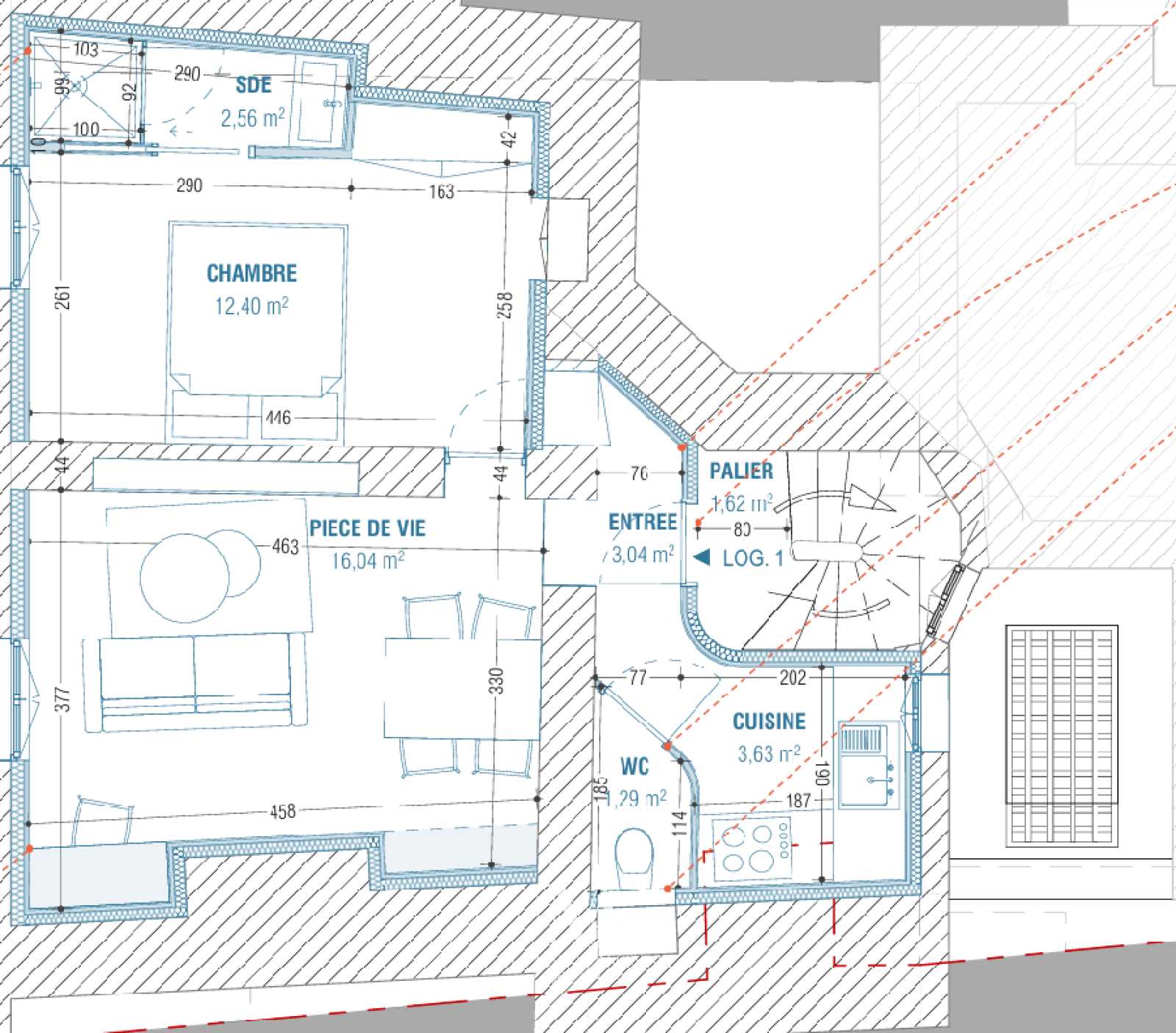
2 pièces - 39 m²

Appartement rénové avec goût en hyper-centre – Rue Saint-Aubin

179 000 €
Reference : 866
Découvrir le bien

Emplacement exceptionnel ! En plein cœur de l'hyper-centre, rue Saint-Aubin, profitez d’un cadre de vie privilégié à deux pas des commerces, des restaurants et des transports en commun.

Découvrez ce magnifique appartement de 39 m², actuellement en rénovation totale, qui sera livré comme neuf tout en conservant le cachet de l'ancien. Il offre une belle pièce de vie lumineuse, une cuisine fonctionnelle, une chambre confortable avec salle d’eau et WC.

Situé dans une charmante petite copropriété entièrement rénovée, avec de faibles charges, cet appartement est idéal pour un premier achat, un pied-à-terre ou un investissement locatif de qualité.

Une opportunité rare à ne pas manquer !

Logement non soumis au DPE, aucun système de chauffage n’étant installé à ce jour.

Contacter Emeriau Mathilde de la Maison Angevine, Agent commercial immatriculé au RSAC de ANGERS sous le numéro 932 821 218


Les informations sur les risques auxquels ce bien est exposé sont disponibles sur le site Géorisques
TRAD_ZEPHYR_Caracteristique TRAD_ZEPHYR_Valeurs
Code postal 49100
Surface loi Carrez (m²) 39 m²
Nombre de chambre(s) 1
Nombre de pièces 2
Etage 1
Ascenseur NON
copropriete OUI
copropriete nombre de lot 5
copropriete quote part 600 €
copropriete plan sauvegarde NON
copropriete statut syndicat pas de procédure en cours
TRAD_ZEPHYR_Caracteristique TRAD_ZEPHYR_Valeurs
Nb de salle d'eau 1
Cuisine Séparée
Balcon NON
Terrasse NON
Murs mitoyens 2
Cave NON
Quartier centre-ville
TRAD_ZEPHYR_Caracteristique TRAD_ZEPHYR_Valeurs
nombre de lots 5
TRAD_ZEPHYR_Caracteristique TRAD_ZEPHYR_Valeurs
Prix de vente honoraires TTC inclus 179 000 €
Prix de vente honoraires TTC exclus 168 100 €
Honoraires TTC à la charge acquéreur 6,48 %
DPE GES
Nous contacter pour ce bien
L'agence
Téléphone 02 41 81 01 51
Adresse
8 rue Saint-Lazare, 49100 Angers

* Champ obligatoire

Les informations recueillies sur ce formulaire sont enregistrées dans un fichier informatisé par La Boite Immo agissant comme Sous-traitant du traitement pour la gestion de la clientèle/prospects de l'Agence / du Réseau qui reste Responsable du Traitement de vos Données personnelles. La base légale du traitement repose sur l'intérêt légitime de l'Agence / du Réseau. Elles sont conservées jusqu'à demande de suppression et sont destinées à l'Agence / au Réseau. Conformément à la loi « informatique et libertés », vous disposez des droits d’accès, de rectification, d’effacement, d’opposition, de limitation et de portabilité de vos données. Vous pouvez retirer votre consentement à tout moment en contactant directement l’Agence / Le Réseau. Consultez le site https://cnil.fr/fr pour plus d’informations sur vos droits. Si vous estimez, après avoir contacté l'Agence / le Réseau, que vos droits « Informatique et Libertés » ne sont pas respectés, vous pouvez adresser une réclamation à la CNIL. Nous vous informons de l’existence de la liste d'opposition au démarchage téléphonique « Bloctel », sur laquelle vous pouvez vous inscrire ici : https://www.bloctel.gouv.fr Dans le cadre de la protection des Données personnelles, nous vous invitons à ne pas inscrire de Données sensibles dans le champ de saisie libre.
Ce site est protégé par reCAPTCHA, les Politiques de Confidentialité et les Conditions d'Utilisation de Google s'appliquent.

Découvrir nos outils